联合办公室我们已经介绍过很多了,在这一年的时间里,国内出现了不少做联合办公的品牌。较有规模的是 SOHO 3Q 和优客工场,前者依托 SOHO 中国的地产和国际知名设计师的设计,在北、上两地核心商圈有 11 家办公室,后者的分布更广,经过一年的发展后场地数量已超过 30 家。


方糖小镇也是一家联合办公的品牌,CEO 万里江曾经是德必的联合创始人,他们以上海为据点,外加上北京、成都一共有 18 家。不过有些办公室的地点并非是传统的写字楼,而是在浦东机场、全季酒店这样的地方,推行一种流动式的办公。


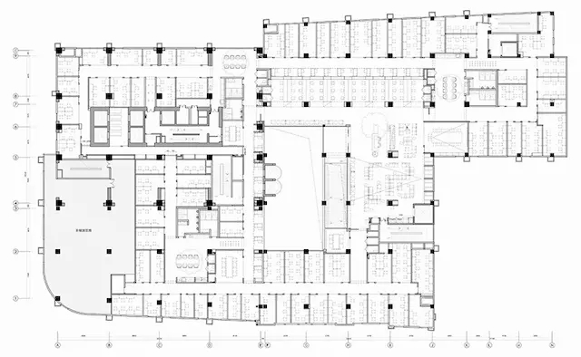
位于上海徐家汇文定路的这一处方糖小镇不久前获得了德国 ICONIC AWARDS(标志性设计奖),他们邀请到专做室内设计的朱周空间设计,这家事务所做过上海嘉定图书馆的室内,他们为这个闹市里的办公室制定了 “Farm Land 创业农场”的概念。


室内 2400 平方米的面积保留了大量独立小间作为小的办公室,一共容纳了 426 个座位。联合式的大桌并不多,分布在中心天井旁边,并被书架包裹着,更接近开放式的讨论区。天井有采光的作用,旁边还有一个休息的区域,将这里构建成一个集中的公共区。有些地方还没有封顶,却也不显得简陋,浅棕色木板和一些有艺术感的线条装饰着白色墙面,气氛自由而轻松。

“绿植”被借用过来烘托气氛,走廊上就有不少盆景。公共区的地板使用了绿色,在桌子上,直接“长”出了一颗树——如果是真树的话,那就比较加分。

联合办公通常少不了独处的休息空间,一条铺上石子有绿树背景的走廊足以让人安静待一会儿,其中有个门通向一间瑜伽室。


打电话的房间,可以不吵着他人。

走廊上设计了一些像吊环一样的装置,这种随时运动的设计符合年轻一代的需要。

方糖小镇的办公点大多在核心商区之外,因而价格也略低,办公桌每人每月 1599 元,独立办公室单人的月单价则为 1699 元。


