
位于阿姆斯特丹市中心的一座百年学校建筑被改造成为10个宽敞的节能公寓,成为了Ons Dorp Amsterdam团队中10个年轻家庭的理想家园。每间公寓的空间布局模式和建造材料都根据居住者的需求而略有不同。建筑师将太阳能、地源热泵、隔热层、绿色屋顶等可持续的建筑技术综合运用到改造过程中,打造了一个几乎零排放的被动式节能建筑。

在这间四口之家所居住的公寓内,原来的教师休息室被改造为卧室,而教室则被转化为居住空间。

开阔高大的内部空间为复式公寓的建造提供了良好的基础,细分的空间让居住在同一屋檐下的家庭成员们得以拥有各自专属的一方天地。而客厅、餐厅、厨房、儿童活动空间和书房则被统一到了同一个开敞的公共活动空间之内。

▽ 开敞的公共活动空间内集合了多种功能

▽ 开放式的厨房和餐厅

▽ 二层的书房和琴房

储藏空间对于有两个孩子的家庭而言十分重要。建筑师高效地利用楼梯的下方空间,打造了数个既能存放玩具,又能提供玩耍和小坐空间的地柜。

▽ 楼梯下的地柜既是游戏空间,又可收纳玩具

▽ 主卧室

▽ 儿童房

混凝土地板和钢制的楼梯元素带着学校建筑特有的简洁利落,而无处不在木制元素则让室内空间变得明亮而温暖。室内设计营造了充盈的家庭气氛,与这个居住在阿姆斯特丹市中心,充满着创造力和自主意识的年轻家庭十分相衬。





▽ 简洁利落的钢制楼梯
▽ 木制元素营造了温馨感
▽ 公寓入口大门造型复古
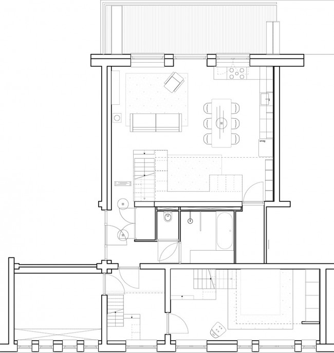
▽ 平面图

